


Tbb Lot 1 Reeder Bay Road Nordman, ID 83848
20260601
$2,058(2024)
10 acres
Single-Family Home
2026
Mountain(s), Panoramic
W Bonner Co.
Bonner County
Listed By
SELKIRK
Last checked Apr 5 2026 at 12:49 AM GMT+0000
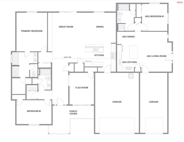
- Master Suite
- Laundry: Main Level
- Windows: Vinyl
- Laundry: Laundry Room
- 2nd Kitchen
- Pantry
- Den/Office
- Office
- Wooded
- Level
- Timber
- Southern Exposure
- Surveyed
- Brdrs Pub. Land
- Pasture
- 15 or More Miles to City/Town
- Foundation: Concrete Perimeter
- Heat Pump
- Utilities: Natural Gas Not Available
- Sewer: Septic Tank
- Elementary School: Priest Lake
- Middle School: Priest River
- High School: Lamanna
- Attached Garage
- Off Street
- Total: 3
- 3+ Car Attached
- 2,844 sqft
Estimated Monthly Mortgage Payment
*Based on Fixed Interest Rate withe a 30 year term, principal and interest only
Description